Reichle Architekten AG
  • Aktuell
  • Projekte
  • Über uns
    • Portrait
    • Team
    • Engagement
    • Stellen
    • Mitgliedschaften & Links

   
 

Gschwaderstrasse | Mehrfamilienhaus | Uster

  • Text
  • |
  • Daten
  • |
  • Teilen

Situation

Nördlich des Stadtzentrums von Uster entsteht auf dem Areal der stillgelegten Gärtnerei, welches von vier- bis sechsgeschossigen Punktbauten umgeben ist, dass aus dem Oktagon entwickelte Mehrfamilienhaus mit 16 Mieteinheiten von 2.5 bis 4.5 Zimmer-Wohnungen.

 

Zielsetzung

Der Schwerpunkt unserer Arbeit ist die Weiterführung der inneren Verdichtung des Gevierts mit einem Angebot von attraktivem Wohnraum umgesetzt mit qualitativer Architektur. Um sich in der bestehende Volumenstruktur zu behaupten, wird ein grossvolumetrisches Gebäude geplant. Eigenständig und prägend steht der Solitär neu in seiner Umgebung. 

               

Zentrale Organisation

Der Zentralbau bildet den neuen Mittelpunkt des Areals und entwickelt sich über 4 Geschosse und einem Attika. Der zentralisierenden Anordnung verschiedener Formenelemente liegt eine strenge geometrische Ordnung zugrunde. Das Regelgeschoss ist als Vierspänner konzipiert und spannt die Wohnungen fächerartig um das oktogonale Treppenhaus.

 

 

Eingangsbereich und Wegführung zu den Wohnung

Die Annäherung zum Gebäude in zweiter Reihe erfolgt schräg über den von den Schottenwänden aufgespannten Platz zum zurückgesetzten Eingang. Horizontal ist das Gebäude über das sich verjüngende, eingeschossige Foyer zugänglich, welche die BesucherInnen und BewohnerInnen ins zentrale Atrium führt. Der achteckige Treppenhauskern aus Sichtbeton, der sich als viergeschossiger vertikaler Luftraum öffnet, schafft einen dynamischen und anregenden Innenraum. Die klar geführten Zugänge zu den einzelnen Wohnungen erfolgt in horizontaler und vertikaler Richtung mittels einer dem Oktagon folgenden Sichtbetonlaube, respektive Treppe mit einem Treppenauge von 5 Meter, welches durch den reflektierenden Lift besetzt ist. Im Kontrast zum rohen Beton steht der zentrierte und edel materialisierte Personenaufzug. Diesen umschreitend steigt der Besucher so kontinuierlich in die Höhe. Licht und Schatten im Zusammenspiel mit rohen und edlen Materialien generieren mit Lichtreflektionen und zueinander farblich abgestimmter Oberflächen eine einzigartige Atmosphäre.

 

Grundrissorganisation

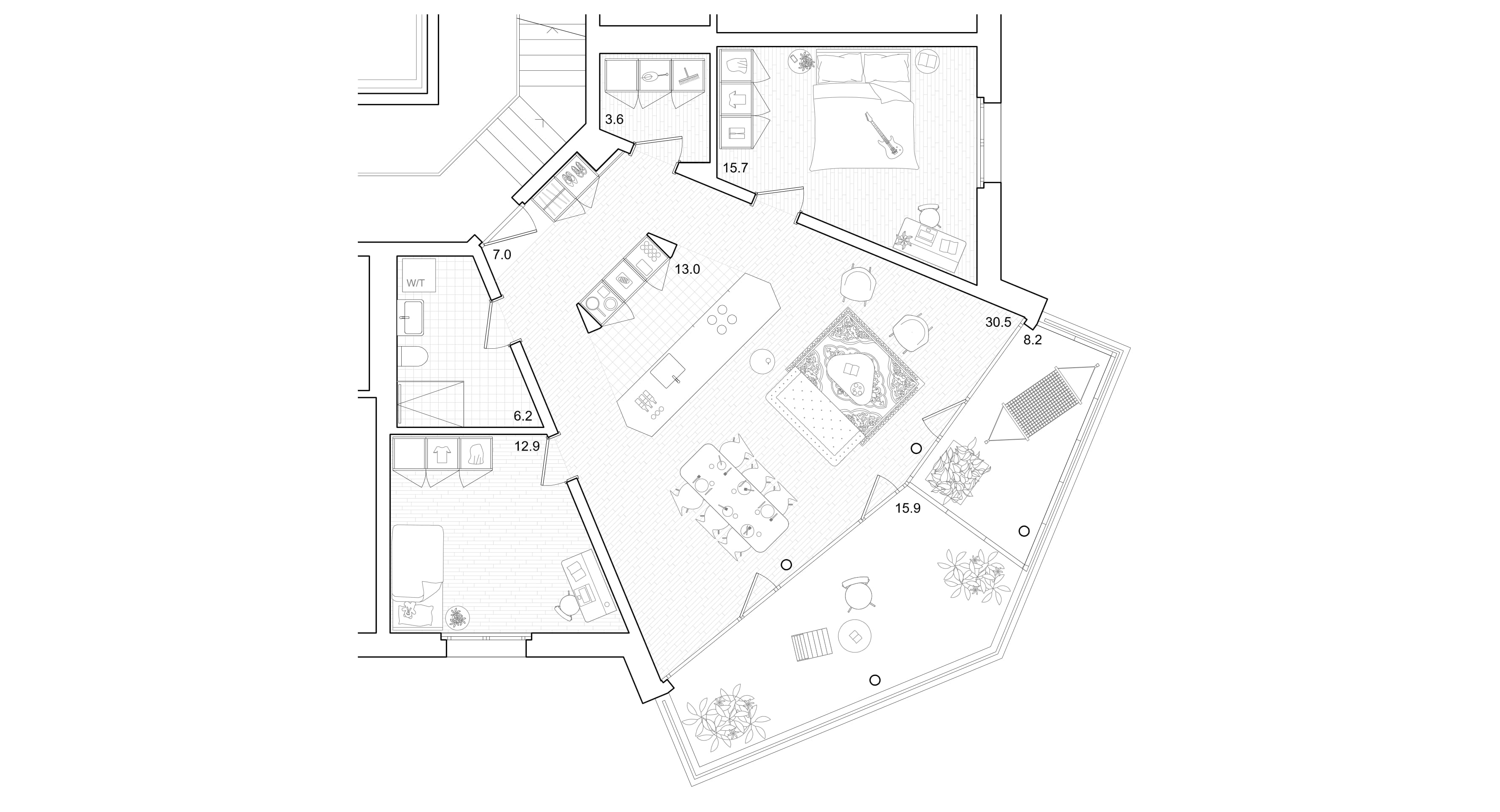
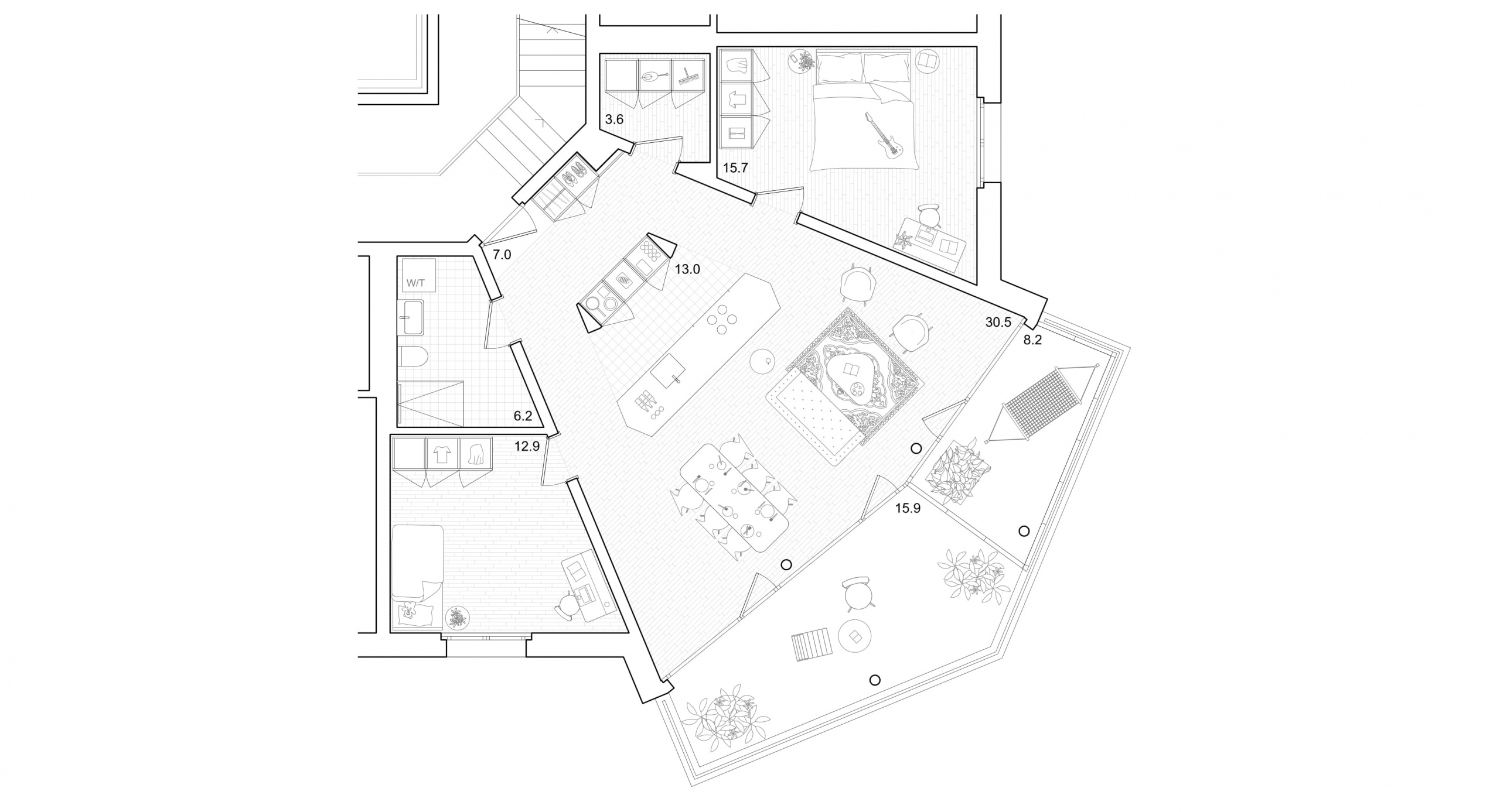
Die direkt erschlossenen, symmetrischen Trapezräume beherbergen jeweils Entree, Kochen, Essen und Wohnen. Dir Räume öffnen und orientieren sich jeweils über die gesamte Breite auf die Loggias mit den Wintergärten zur Umgebung. Die einzelnen Zimmer sowie die Sekundärnutzungen sind als rechtwinklige Trapezräume jeweils an den Längsseiten des Hauptraums angeordnet. So entstehen bis vier unterschiedlich ausgerichtete Wohnungen pro Etage und damit einhergehend vier unterschiedlich gerichtete Blickbezüge zwischen den Nachbargebäuden hindurch. Die Loggias ragen über die Schottenwände hinaus und eröffnen weiterführende Ausblicke in die Umgebung.

Statisches Konzept

Der polygonale Kern aus Sichtbeton sorgt für die Aussteifung des Gebäudes. Vom Kern nach Aussen übernehmen radial symmetrische Schottenwände die Lasten der dazwischen gespannten Geschossdecken. Die Schotten sind immer raumbildend und prägen die innere und äussere Erscheinung des Hauses.

Projekt-Kategorie
Nachhaltigkeit | Wohnen
Unser Beitrag
Beratung | Machbarkeitsstudie | Architektur | Planung | Bauleitung
Bauherrschaft
Privat
Standort
Uster


Facts & Figures

Wir halten Sie auf dem Laufenden

Reichle Architekten

Neuwiesenstrasse 10a, CH-8610 Uster
T +41 44 943 60 30, F +41 44 943 60 33
arch@reichle-arch.ch | Anfahrt | Impressum



Copyright © Reichle Architekten 2015